Découvrez celle belle maison T4 de 79m² avec une terrasse et un beau jardin de 31 m².
Elle est située dans la résidence Equinoxe qui propose 5 belles maisons T4 avec pour chacune un jardin orienté sud-ouest et une place de stationnement.
L'architecture est une véritable ode à la beauté naturelle, avec des façades alternant harmonieusement bois et enduits blancs. Chaque détail a été pensé pour créer une atmosphère chaleureuse et accueillante, en parfaite harmonie avec l'environnement résidentiel.
Conçues selon la réglementation environnementale RE2020, les maisons Equinoxe allient respect de la nature, confort moderne et belle qualité de vie, avec des logements spacieux, lumineux et traversants, dotées des dernières normes acoustiques.
Ces maisons sont destinées à l'acquisition en résidence principale sous conditions de ressources, et proposés à prix abordable en TVA réduite.
Ne manquez pas l'opportunité de vivre dans un cadre de vie privilégié, alliant confort, élégance et qualité de vie. Contactez-nous dès maintenant !
Maison T4
Equinoxe
Bat. B 16 Rue Saint Quentin , Le Havre
- 78 m²
- 4 pièces
220 000 €
soit 1 024 €/mois
Livraison en 2027
Référence : VE1445/203
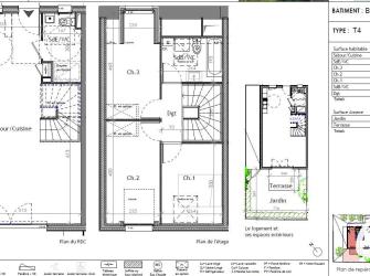
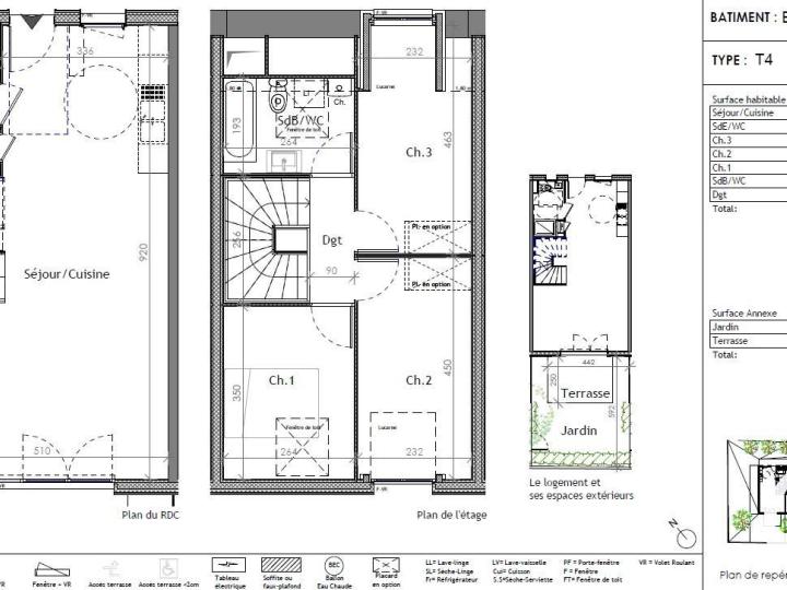
Détail du logement
- Type : T4
- Nombre de pièces : 4
- Étage : RDC
- Exposition du séjour : Sud
- Salle(s) de bain : 2
- Type : gaz
- Chauffage : individuel
- Nombre de chambres : 3
- Surface habitable : 78 m²
- Surface au sol : 31 m²
- Meublé : non
- Référence : VE1445/203
- 15 ans d'éxonération de taxe foncière
- Garantie du prix de revente
- Eligible au prêt à taux zéro
- Eligible au dispositif Location-Accesion PSLA
- TVA réduite à 5,5%
- Salle d''eau/ toilettes : 4.4 m²
- Entrée :
- Salle de bains : 4.4 m²
- Séjour/Cuisine : 38.4 m²
- WC :
- Entrée :
- Cellier :
- Chambre 1 : 9.2 m²
- Terrasse : 8.8 m²
- Jardin : 22.7 m²
- Chambre 2 : 10.4 m²
- Entrée Dégagement : 2.3 m²
- Chambre 3 : 9.4 m²
- Parking 24 m²
- Ascenseur
- Chauffage Gaz
- Prix : 220 000 €
- Charges annuelles : 1 044 €
Visite virtuelle 360
Localisation
Bat. B 16 Rue Saint Quentin , Le Havre
Logement Neuf maison T4 VE1445/203
Autres établissements
Programme
Equinoxe
Le Havre
Livraison en 2027