Découvrez ce bel appartement T3 de 63m² exposé sud-ouest avec une terrasse et un jardin 44m². Il est situé au rez-de-chaussée dans la résidence Le Clos Marianne. Elle se compose de 29 appartements lumineux et agréables, du T2 au T4 répartis sur 2 bâtiments. Pour votre confort chaque appartement dispose d'une place de stationnement et d'un espace extérieur : jardin ou terrasse pour le RDC et balcon pour les étages, tout en garantissant votre intimité grâce à des dispositifs permettant de limiter les vis-à-vis ou les vues en surplomb.
Située à Port-Jérôme-sur-Seine, cette résidence se distingue par son architecture liant modernité et nature, faisant le lien avec la nature environnante et permettant plus de douceur aux abords de la ville.
Les matériaux utilisés pour certains biosourcés renforce le caractère naturel du Clos Marianne notamment grâce au bois recouvrant les bâtiments.
Les appartements sont traversants et donnent sur de généreux espaces verts, permettant un espace de vie baigné de lumière tout au long de la journée, dans une ambiance naturelle et intimiste.
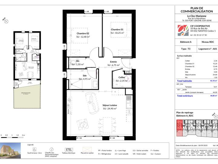
Appartement T3
Le Clos Marianne
Bat. a Rue de la Republique , Port Jerome Sur Seine
- 63 m²
- 3 pièces
202 000 €
soit 941 €/mois
Livraison en 2027
Référence : VE1430/A01
Détail du logement
- Type : T3
- Nombre de pièces : 3
- Étage : RDC
- Exposition du séjour : Sud
- Salle(s) de bain : 1
- Nombre de chambres : 2
- Surface habitable : 63 m²
- Surface au sol : 44 m²
- Meublé : non
- Référence : VE1430/A01
- TVA réduite à 5,5%
- Eligible au prêt à taux zéro
- Garantie du prix de revente
- Eligible au dispositif Location-Accesion PSLA
- 15 ans d'éxonération de taxe foncière
- Chambre 1 : 10.3 m²
- Chambre 2 : 12.5 m²
- Séjour/Cuisine : 24.9 m²
- Jardin : 35 m²
- Cellier : 2.4 m²
- WC : 1.5 m²
- Entrée :
- Entrée : 6.8 m²
- Salle d''eau/ toilettes : 5 m²
- Terrasse : 9 m²
- Parking aérien
- Prix : 202 000 €
Visite virtuelle 360
Localisation
Bat. a Rue de la Republique , Port Jerome Sur Seine
Logement Neuf appartement T3 VE1430/A01
Autres établissements
Programme
Le Clos Marianne
Port Jerome Sur Seine
Livraison en 2027
Vous pourriez aussi aimer...
-
1 images disponibles Neuf
Appartement T3
Port Jerome Sur Seine
202 000 €
soit 941 €/mois
- 63 m²
- 3 pièces
-
1 images disponibles Neuf
Appartement T3
Port Jerome Sur Seine
202 000 €
soit 941 €/mois
- 63 m²
- 3 pièces
-
1 images disponibles Neuf
Appartement T3
Port Jerome Sur Seine
205 000 €
soit 955 €/mois
- 63 m²
- 3 pièces