Découvrez ce bel appartement T3 de 63 m² exposé sud-ouest avec un balcon de 10 m². Il est situé au 2ème étage dans la résidence Le Clos Marianne. Elle se compose de 29 appartements lumineux et agréables, du T2 au T4 répartis sur 2 bâtiments. Pour votre confort chaque appartement dispose d'une place de stationnement et d'un espace extérieur : jardin ou terrasse pour le RDC et balcon pour les étages, tout en garantissant votre intimité grâce à des dispositifs permettant de limiter les vis-à-vis ou les vues en surplomb.
Située à Port-Jérôme-sur-Seine, cette résidence se distingue par son architecture liant modernité et nature, faisant le lien avec la nature environnante et permettant plus de douceur aux abords de la ville.
Les matériaux utilisés pour certains biosourcés renforce le caractère naturel du Clos Marianne notamment grâce au bois recouvrant les bâtiments.
Les appartements sont traversants et donnent sur de généreux espaces verts, permettant un espace de vie baigné de lumière tout au long de la journée, dans une ambiance naturelle et intimiste.
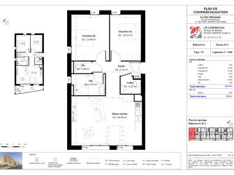
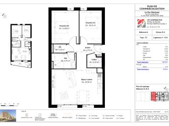
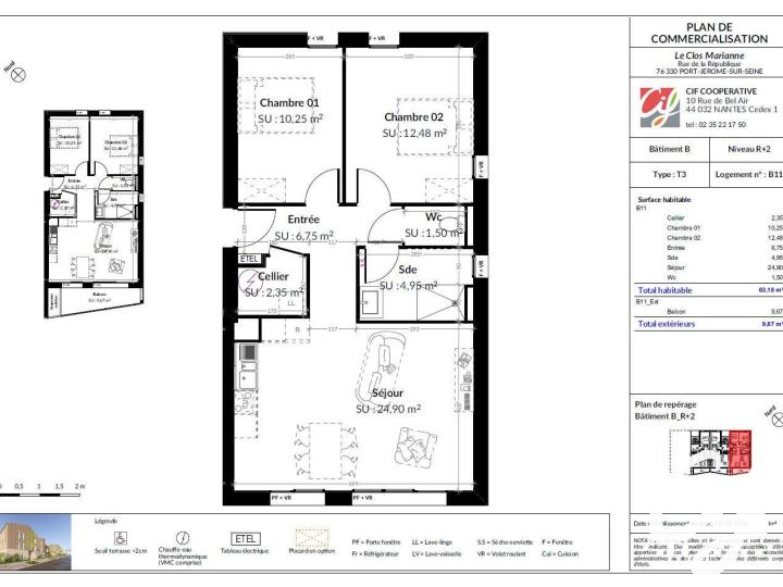
Appartement T3
Le Clos Marianne
Bat. B Rue de la Republique , Port Jerome Sur Seine
- 63 m²
- 3 pièces
190 000 €
soit 885 €/mois
Livraison en 2027
Référence : VE1431/B11
Détail du logement
- Type : T3
- Nombre de pièces : 3
- Étage : 2ème
- Exposition du séjour : Sud
- Salle(s) de bain : 1
- Nombre de chambres : 2
- Surface habitable : 63 m²
- Surface au sol : 9 m²
- Meublé : non
- Référence : VE1431/B11
- TVA réduite à 5,5%
- Eligible au prêt à taux zéro
- Garantie du prix de revente
- Eligible au dispositif Location-Accesion PSLA
- 15 ans d'éxonération de taxe foncière
- Entrée :
- Séjour/Cuisine : 24.9 m²
- Entrée : 6.8 m²
- Salle d''eau/ toilettes : 5 m²
- Cellier : 2.4 m²
- Chambre 2 : 12.5 m²
- Balcon : 9.7 m²
- Chambre 1 : 10.3 m²
- WC : 1.5 m²
- Parking aérien
- Prix : 190 000 €
Visite virtuelle 360
Localisation
Bat. B Rue de la Republique , Port Jerome Sur Seine
Logement Neuf appartement T3 VE1431/B11
Autres établissements
Programme
Le Clos Marianne
Port Jerome Sur Seine
Livraison en 2027
Vous pourriez aussi aimer...
-
1 images disponibles Neuf
Appartement T3
Port Jerome Sur Seine
193 000 €
soit 899 €/mois
- 63 m²
- 3 pièces
-
1 images disponibles Neuf
Appartement T3
Port Jerome Sur Seine
195 000 €
soit 908 €/mois
- 63 m²
- 3 pièces
-
1 images disponibles Neuf
Appartement T3
Port Jerome Sur Seine
195 000 €
soit 908 €/mois
- 63 m²
- 3 pièces