PAS DE FRAIS D AGENCE !
Au cœur du quartier prisé de Sanvic, entre la mairie annexe et l'église :
appartement T2 en duplex exposé sud avec stationnement et balcon.
appartement comprenant une piece de vie, salle de bains, wc, cuisine à l'étage une chambre avec wc
Résidence intimiste de 10 appartements avec prestations de standing : Do Chauffage au gaz individuel .
Eau, gaz , électricité, contrat chaudière non inclus dans les provisions sur charges.
DISPONIBLE AU 8 NOVEMBRE 2025
Logement sous LOI PINEL avec une assurance loyers impayés
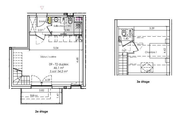
Appartement T2
23 Rue du Docteur Velpeau , Le Havre
- 47 m²
- 2 pièces
569 € CC
Pas de frais d'agence
Disponibilité : 09/11/2025
Référence : LOC1252/009
Détail du logement
- Type : T2
- Nombre de pièces : 2
- Étage : 2ème
- Exposition du séjour : Sud
- Salle(s) de bain : 1
- Type : gaz
- Chauffage : individuel
- Nombre de chambres : 1
- Surface habitable : 47 m²
- Meublé : non
- Référence : LOC1252/009
- Frais d'agence offerts
- Salle d''eau/ toilettes : 4.5 m²
- Entrée Dégagement : 3.3 m²
- Chambre 1 : 9.8 m²
- Dégagement 1 : 1.4 m²
- Séjour/Cuisine : 26.5 m²
- Balcon : 5.9 m²
- WC : 0.6 m²
- Parking aérien 11.5 m²
- Antenne Collective
- Chauffage Gaz
- Parking
- Vidéophone
- Vitrage double
- Transports : Ligne de bus : lignes 4 et 5 - arrêt Sanvic Eglise / Gare : Gare SNCF du Havre / Aéroport : Aéroport d'octeville / Autoroute : Rocarde Nord - autoroute A13
- Écoles : Jules Ferry / Lycee : Saint Joseph / Collège : Saint joseph / Université : Université du Havre
- Commerces : banques, boulangerie, tabac presse, pharmacie, fleuriste... / Centre commercial : carrefour market sanvic
- Plafond de ressources Loi PINEL
- Garant impossible (sauf pour les étudiants) car assurance loyers impayés
- Prix : 569 € CC
- Dont charges : 40 €
- Eau chaude comprise : non
- Eau froide comprise : non
- Chauffage compris : non
- Montant du dépôt de garantie : 480,00 €
- Logement non adapté pour la colocation
Diagnostic de performance énergétique réalisé après le 1er juillet 2021
Logement de performance C. La note finale retient le moins bon classement des deux.
Logement très performant







Logement extrêmement consommateur d'énergie
Indice de mesure : kWhEP/m2.an
Peu d'émissions de CO2







Emission de CO2 très importantes
Indice de mesure : kgeqCO2/m2.an
Dont émission de gaz à effet de serre
Estimation des coûts annuels d'énergie : entre 525 € et 710 €/an
Localisation
23 Rue du Docteur Velpeau , Le Havre
Logement Location appartement T2 LOC1252/009
Autres établissements