PAS DE FRAIS D'AGENCE !
Appartement t1bis récent en rez de chaussée situé rue Duguay Trouin à deux pas de l'université, de la gare et du tramway. Entrée privative, séjour ouvert sur kitchenette avec meuble évier et plaques, espace nuit avec placard et salle de douche avec receveur extra plat. Chauffage au gaz individuel par chaudière à condensation respectant la RT 2012 vous garantissant une faible consommation énergétique. Logement certifié NF Habitat.
Belle loggia exposée ouest.
Eau, chauffage, électricité non compris dans les charges.
Entretien parties communes et espaces verts compris dans les provisions sur charges mensuelles et donnant lieu à une régularisation annuelle.
Appartement T1 bis
16 Rue Duguay Trouin , Le Havre
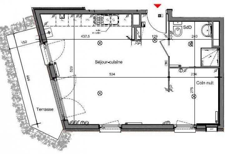
- 35 m²
- 1 pièce
481 € CC
Pas de frais d'agence
Disponibilité : 14/11/2025
Référence : LOC1334/0004
Détail du logement
- Type : T1 bis
- Nombre de pièces : 1
- Étage : RDC
- Exposition du séjour : Ouest
- Salle(s) de bain : 1
- Type : gaz
- Chauffage : individuel
- Surface habitable : 35 m²
- Meublé : non
- Référence : LOC1334/0004
- Frais d'agence offerts
- Salle d''eau/ toilettes : 5.2 m²
- Entrée Dégagement :
- Dégagement 1 :
- WC :
- Loggia : 4.9 m²
- Chambre 2 :
- Séjour/Cuisine : 23.9 m²
- Chambre ouverte : 5.9 m²
- Antenne Collective
- Antenne Collective
- Ascenseur
- Chauffage Gaz
- Parking
- Vidéophone
- Vitrage double
- Transports : Ligne de bus : arrêt ligne 2 Rond Point à 30m / Gare : gare du Havre à 500m / Tram : Arrêt Rond Point à 30m / Aéroport : aéroport Le Havre Octeville / Autoroute : accès autoroute A13
- Écoles : école primaire Maréchal Joffre / Lycee : Lycée Jules Siegfried / Collège : collège Gérard Philippe / Université : Université du havre
- Commerces : Nombreux commerces de proximité / Centre commercial : Centres coty et Les Docks à quelques arrêts de bus
- Plafond de ressources Loi PINEL
- Garant impossible (sauf pour les étudiants) car assurance loyers impayés
- Prix : 481 € CC
- Dont charges : 30 €
- Eau chaude comprise : non
- Eau froide comprise : non
- Chauffage compris : non
- Montant du dépôt de garantie : 451,00 €
- Logement non adapté pour la colocation
Diagnostic de performance énergétique réalisé après le 1er juillet 2021
Logement de performance C. La note finale retient le moins bon classement des deux.
Logement très performant







Logement extrêmement consommateur d'énergie
Indice de mesure : kWhEP/m2.an
Peu d'émissions de CO2







Emission de CO2 très importantes
Indice de mesure : kgeqCO2/m2.an
Dont émission de gaz à effet de serre
Estimation des coûts annuels d'énergie : entre 294 € et 398 €/an *
*Prix moyen des énergies calculées au 01/01/2021
Localisation
16 Rue Duguay Trouin , Le Havre
Logement Location appartement T1 bis LOC1334/0004
Autres établissements